Saneringsvagn
Publicerad: 13/4, 2023Specialbyggd manskapsvagn för användning vid saneringsjobb, såsom asbest.
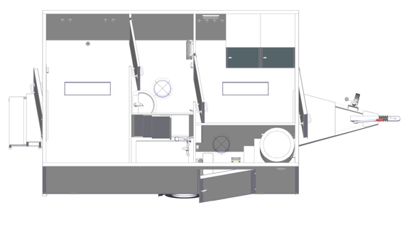
Byggd i enlighet med AFS och Arbetsmiljöverkets regler. I korta drag innebär det att det ska finnas utrymme på arbetsplatsen där man både kan byta kläder och utföra personlig hygien på ett säkert sätt. Skyddskläder, ordinarie arbetskläder eller privata kläder ska hållas åtskilda. Ombyte sker i tre steg där du har rena kläder i den ena delen, en sluss till duschen och sedan smutsiga kläder i den andra delen. En frånluftsfläkt placeras i sista steget så att man rör sig mot en ren luftström under den personliga saneringen.


